
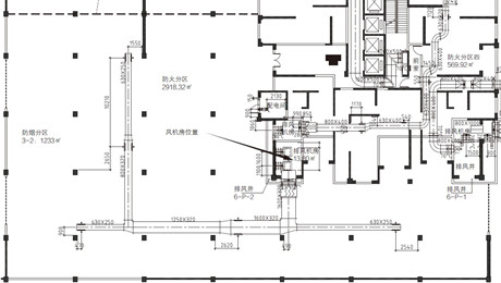
关于建筑械加压送风计算以及其它相关条件的讨论
建筑械加压送风计算以及其它相关条件的讨论
2019-10-12 more

灌注桩基础设计优化与最优几何尺寸分析
通过对国家规范对灌注桩基础的设计要求、市场因素及现场条件(土(岩)层物理力学性质)的综合分析,得出灌注桩基础设计时应着重注意的方面以及最经济桩径、桩长的确定方法。
2019-09-03 more

一带一路中的斯里兰卡建筑设计实践
在企业和个人创造理想和共赢的路上, “一带一路”只是插曲,我们相信将来,中建人文会承载更多人的梦想,不管是员工,还是客户,帮助更多的人去实现梦想,在世界版图上越走越远。
2018-03-20 more

浅谈地下室综合管线的设计与优化
摘要:地下室综合管线的设计优化能有效提高地下室净高,减少地下室开挖深度,同时为现场管道施工提供合理指导方案,提高施工效率。以昆明“西山区3 号片区“城中村”改造项目A-4 地块”施工图设计为例,对地下室设备专业管线综合布置设计的原则、布置方案和排布方法进行技术分析与总结。为接下来项目设计总结经验,同时与机电设计同行实现分享与交流。关键词:地下室综合管线设计 跨专业协调 管道布置优化浅谈地下室综合管线的设计与优化Design and Optimization of Comprehensive Pip
2017-09-28 more

浅谈BIM在电气设计上的应用
摘要:BIM 已成为现今建筑设计市场的大趋势,文章对BIM 运用在电气设计方面的具体实施进行探讨,梳理BIM 在电气设计中应该如何运作并分析与其他专业之间的协同设计。关键词:建筑信息模型 软件 电气 碰撞浅谈BIM 在电气设计上的应用Application of BIM in Electric Design黄钰华,云南中建人文建筑设计研究院有限公司,建筑及规划设计研究所,电气工程师
2017-09-28 more

保税区给排水设计关键问题总结及反思
摘要:综合保税区具有功能复杂及火灾危险性高的特点,口岸作业区的监管仓库属超大净空仓库。简要介绍了保税区的消防系统设计,并对超大净空仓库内的自动喷水灭火系统的设计进行了分析总结,提出自己的设计理念。关键词:综合保税区 消防设计 超大净空仓库 大空间智能灭火系统昆明空港综合保税区给排水设计关键问题总结及反思Summary and Self-examination of Water Supply and Sewage Design forComprehensive Bonded Area in Ku
2017-09-28 more
